考试要求:
1、考试方式:计算机操作,闭卷;
2、考试时间:180分钟;
3、新建文件夹,以“准考证号+姓名”命名,用于存放本次考试中生成的全部文件。
试题部分:
一、创建下图中的风机盘管模型,要求添加水暖电连接件,结果以“风机盘管.xxx”为文件名保存在考生文件夹中。(8分)
二、l、创建下图中的送风口模型,要求添加连接件,结果以“送风口.xxx”为文件名保存在考生文件夹中。
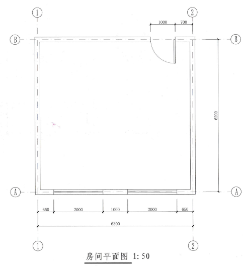
2、根据给出的图纸创建建筑形体,建筑层高3300mm,包括墙、柱、门、窗,仅要求尺寸与位置正确,窗高为1500mm窗台高度为600mm,未标注尺寸不作要求。按要求建模:房间采用风机盘管制冷,房间的冷负荷为5000w,在建筑形体中绘制两台符合要求的的卧式暗装风机盘管,要求接风管风口。室外绘制水管干管将风机盘管接至室外干管上,未注明参数不作具体要求,按照所给条件绘制出模型。请将模型以“风机盘管房间”为文件名保存到考生文件夹中。(12分)








